露光光源に、『T-9500シリーズ』で実績のある「ファイバー系レーザーダイオード」を採用。
64チャンネル化により、安定した描画性能と高速露光を実現しました。この最新の光学系と、「高速回転ドラム」「高精度クランプ」「真空吸着システム」といった駆動系との相乗効果により、「菊半33版/時」(T-6500CTP N- Xの場合)の出力スピードを達成しています。
新光源は、露光ビームの縦横対称性により、細線部の縦線と横線のバランスに優れ、忠実な網点描画が可能。抜群の露光品質・安定性を発揮します。
新設計の筐体の採用により、優れた操作性・搬送性を実現。快適な作業環境を実現します。
- 手差し時のカバー開閉が不要に
「スライド式本体カバー」の採用により、手差し挿入・排出時のカバーの開閉が不要になりました。 - 優れた搬送安定性
独自の搬送機構により、つねに安定した出力が可能です。 - 省スペース化
従来は外付けであったブロアユニットを内蔵。また、自動現像機との接続に使用する外付けコンベアが不要で、オプションのビルトインブリッジが選択可能です。
プレートサイズは、最大830×680mmから最小324×330mmまで、さらにオプションで270×278mmまでの小サイズに対応。幅広い用途で柔軟に活用できます。
最新の露光光源により、優れた高精細スクリーニング適性を発揮。富士フイルム独自の高精細スクリーニング『Co-Re SCREENING』や、連続調写真のような再現性・高彩度をもたらすFMスクリーニング『TAFFETA』との組み合わせで、高精細ニーズへの対応が可能になります。また、これらのスクリーニングを使用することで、印刷時のインキ使用量を削減することも可能です。

Eco-modeにより、待機時の消費電力を大幅に抑えることができます。
また、『SUPERIAシリーズ』のサーマルプレートや自動現像機との組み合わせにより、現像液使用量・廃液量の削減が可能。完全無処理プレートにも対応しているため、「廃液ゼロ」も実現でき、より高次元な環境負荷削減・コストダウンが図れます。
| モデル | 通常待機時 | Eco-mode時 | 電力削減率 |
|---|---|---|---|
| T-6500CTP N-X | 313W | 134W | 57.2% |
| T-6500CTP N-S | 278W | 122W | 56.1% |
| T-6500CTP N-E | 254W | 120W | 52.8% |

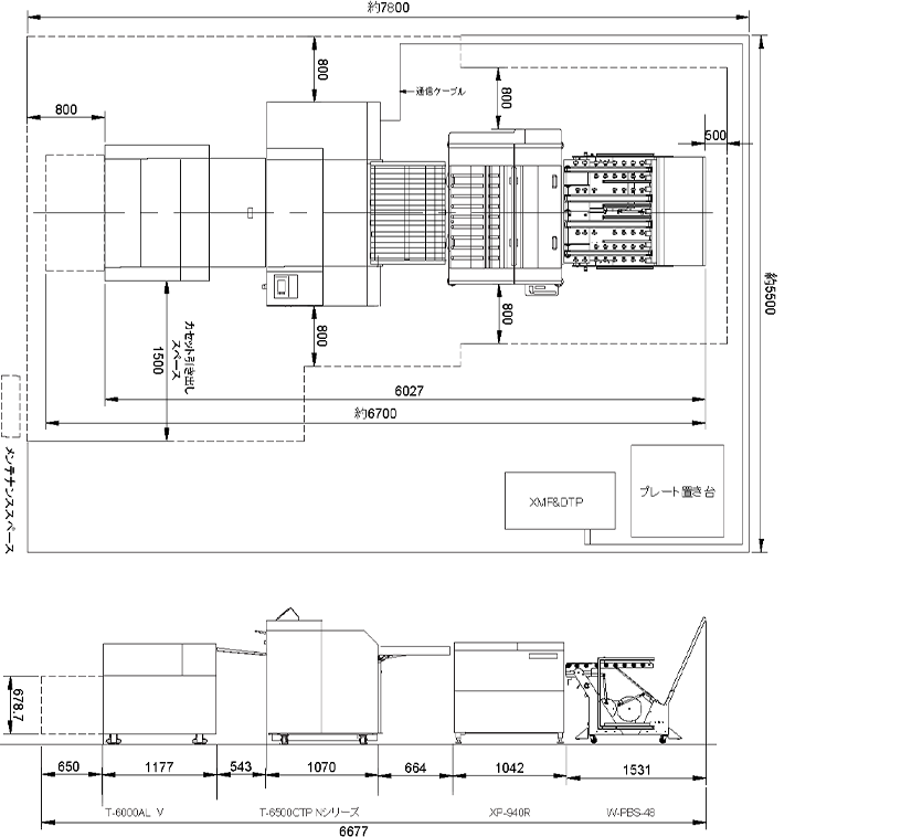
T-6000AL V+XP-940R+GRAFMAC社製ストッカーW-PBS-48(ビルトインブリッジ有)

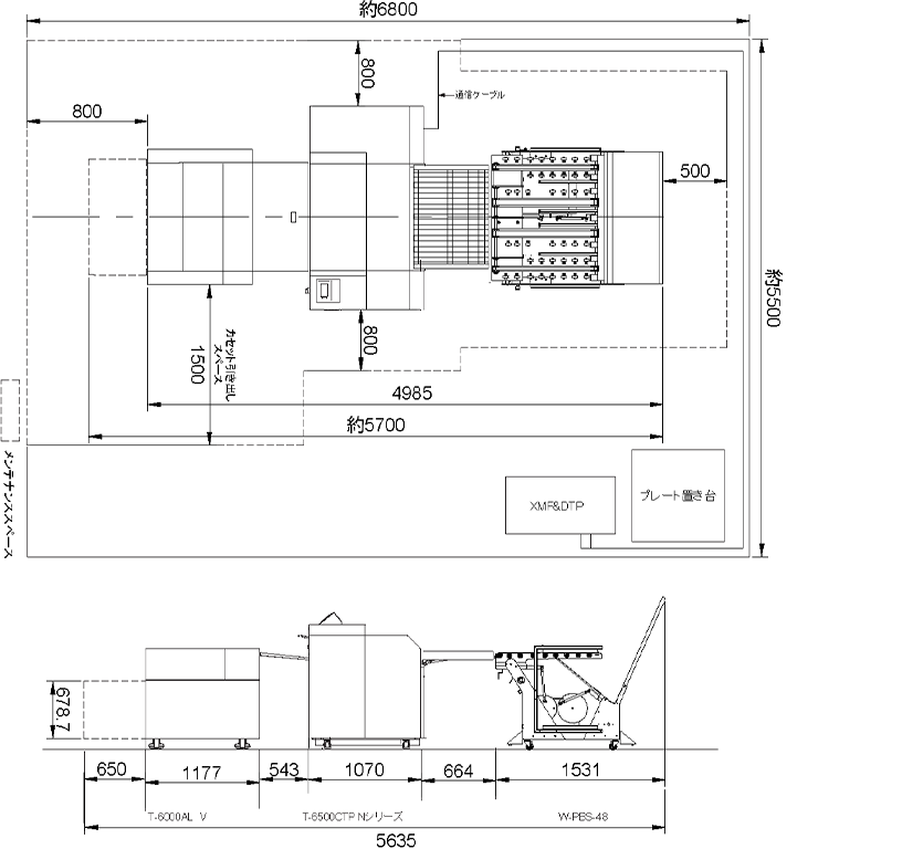
T-6000AL V+GRAFMAC社製ストッカーW-PBS-48(ビルトインブリッジ有*1)

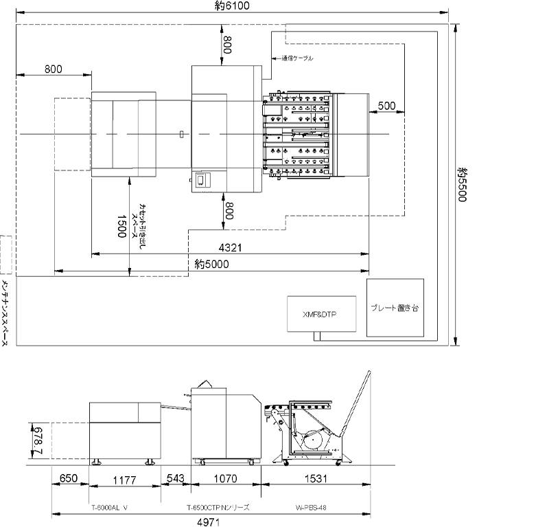
T-6000AL V+GRAFMAC社製ストッカーW-PBS-48(ビルトインブリッジ無*1)
- *1 ご使用の版サイズにより選択









